Genesis Apartments, Business & Services

Lançamentos > Genesis Apartments, Business & Services
Código:
Tipo:
Apartamento
Bairro: Freguesia
Localidades: Freguesia
Etapa:
Lançamento
Valor:
Consultar
Descrição:
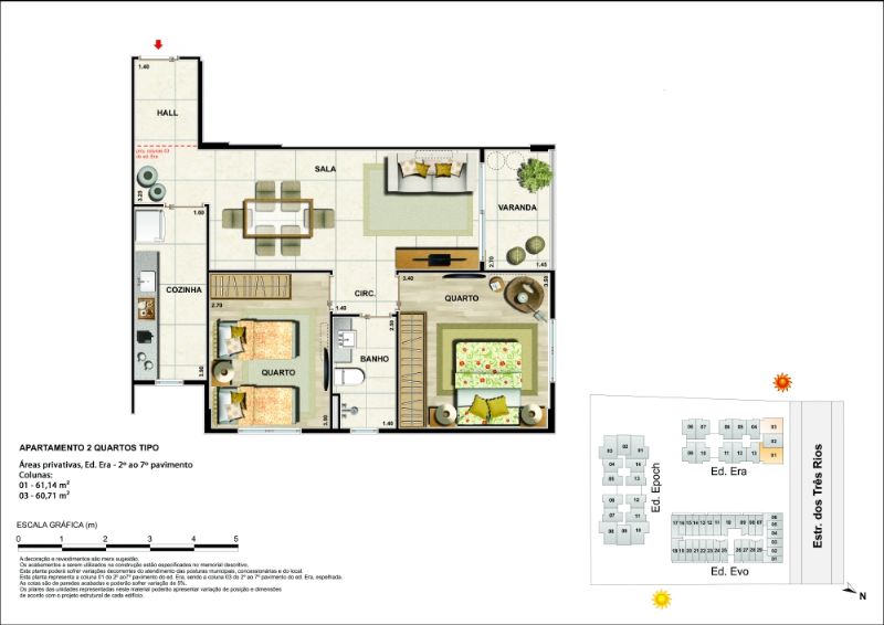
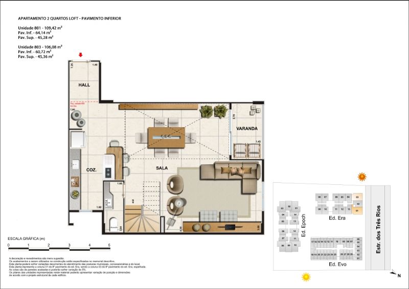
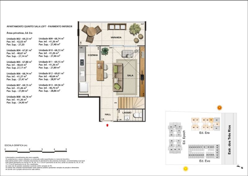
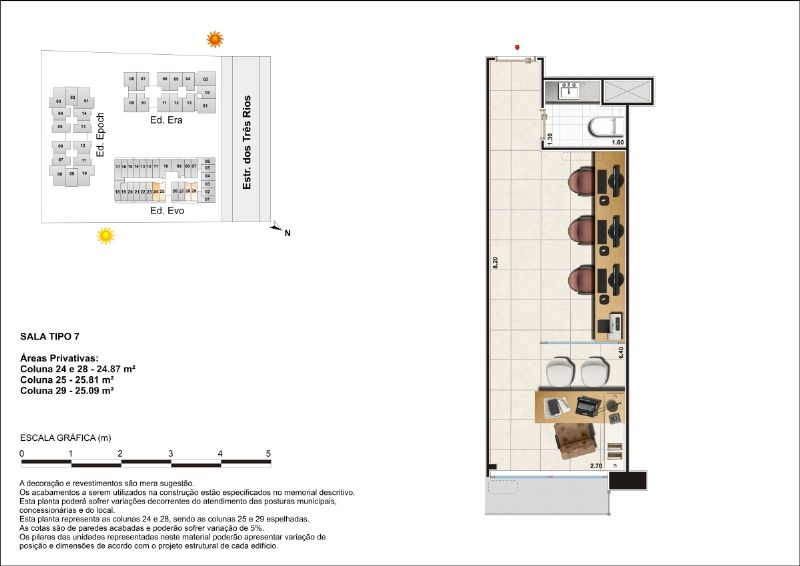
O Genesis Apartments, Business & Services é um empreendimento altamente qualificado que reúne tudo em um mesmo local – moradia, negócios e serviços – um diferencial indispensável para você que quer viver de uma forma mais que completa. O primeiro empreendimento mixed use, localizado na Estrada dos Três Rios, entre a Rua Geminiano Góis e a Comandante Rubens Silva. O endereço é um dos mais valorizados da Freguesia, tanto para moradia quanto para comércio, pois liga vários pontos do bairro, tem grande fluxo de pessoas e centraliza tudo o que você precisa para a sua conveniência como: bancos, hospitais, escolas, faculdades, restaurantes, academias e shoppings, além de muitas opções de lazer. APARTAMENTOS, LOFTS, LOJAS E SALAS COMERCIAIS COM INFRAESTRUTURA COMPLETA DE LAZER E SERVIÇOS. Todas as unidades com vaga de garagem. Lofts de 1 quarto de 66,16 a 69,61 m²; lofts de 2 quartos de 106,08 a 109,42 m². Apartamentos de 1 quarto de 38,85 a 41,77 m²; Apartamentos de 2 quartos de 60,71 a 64,16 m². Piso de porcelanato em todo o apartamento.

Genesis Apartments, Business & Services

Disponibilidade: 
Venda
Faixa de Valor: 
Sob consulta

Receber Novidades

IMÓVEIS S.A.
contato@imoveissa.com.br

Tel.: (21) 97634-8969

Busca Rápida:

Safira Agência Digital